Zum Inhalt springen

066 GAS Parkinsel

Geistlich Areal, Schlieren, Schweiz

2014 - 2020

Geistlich Areal Schlieren – Parkinsel
In Schlieren bei Zürich entsteht hinter dem Bahnhof ein neues Wohn- und Gewerbequartier mit einem großzügigen Park im Zentrum – dem Riedpark. Als Herzstück dieses Parks wird die Parkinsel, bestehend aus drei historischen Gebäuden, revitalisiert und neu genutzt. Dieser Treffpunkt soll den Riedpark als Ort der Begegnung und Erholung stärken.

Ein Ensemble aus Vergangenheit und Zukunft
Das Ensemble umfasst ein Gärtnerhaus, einen Trafoturm und eine wieder aufgebaute Holzhalle. Jedes dieser Gebäude trägt zur einzigartigen Identität der Parkinsel bei und verbindet Historie mit modernen Anforderungen.

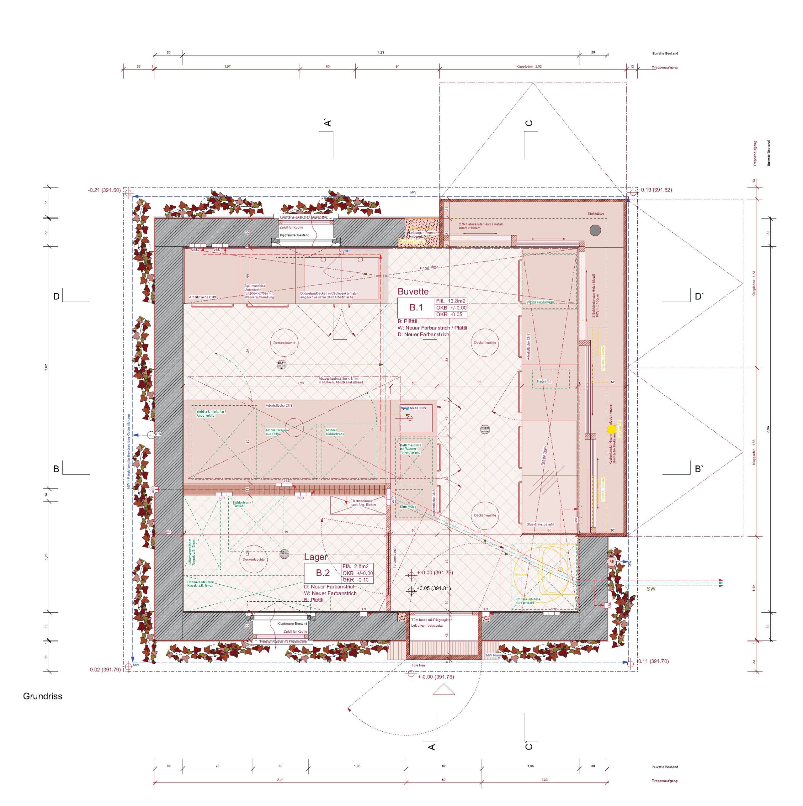
Buvette – Gastronomie für den ganzen Park
Ein ehemaliges WC-Lagerhaus wurde zu einer Buvette umgebaut. Diese kleine Gastronomie versorgt den gesamten Park und wird entscheidend zur Belebung und zum Erfolg der neuen Parkmitte beitragen. Sie dient als Treffpunkt für Parkbesucher und stärkt die Aufenthaltsqualität des öffentlichen Raums.

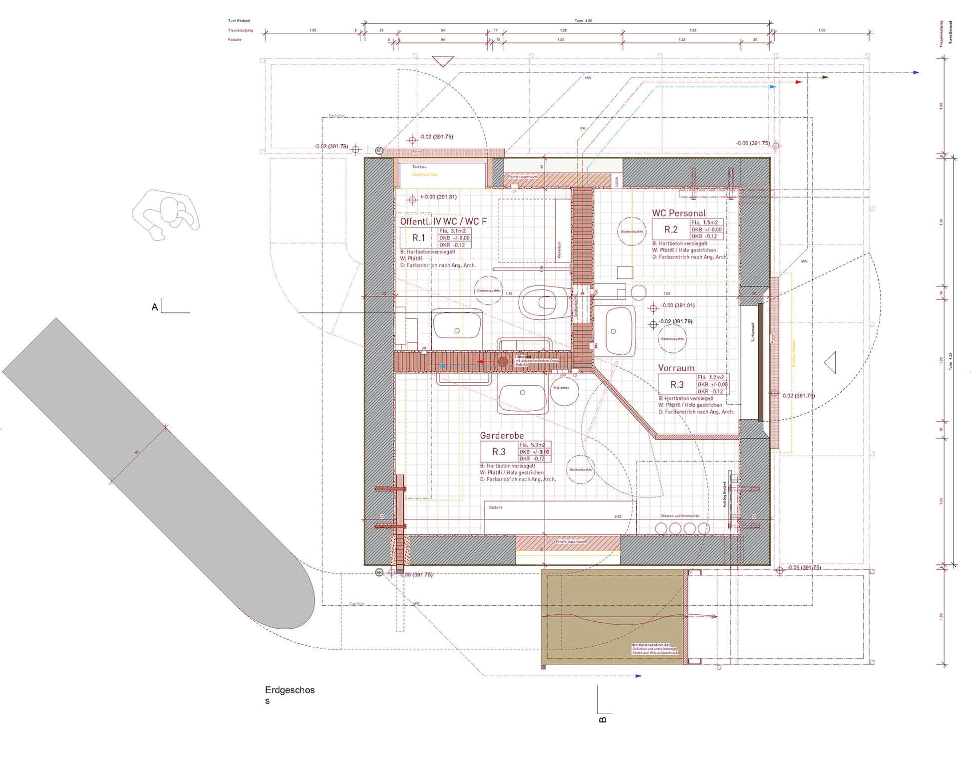
Rutschenturm – Transformation eines Relikts
Der alte Trafoturm wurde zum Rutschenturm umgenutzt. Während das Erdgeschoss ein IV-WC, Personalgarderoben und sanitäre Anlagen für die Gastronomie beherbergt, verbindet das erste Obergeschoss die Haustechnik mit der Rutsche. Dieses spielerische Element macht den Turm zu einem Highlight für Familien und Kinder.

Die Landihalle – ein Raum für Gemeinschaft
Die alte Holzhalle, auch „Landihalle“ genannt, wurde restauriert und auf die heutigen statischen Anforderungen ausgelegt. Unter einem weitläufigen Dach lädt ein Kamin auf einem Ziegelstein-Teppich zum Verweilen ein. Die Halle wird als gemütlicher Ort für Begegnungen, Veranstaltungen und Erholung genutzt.

Möbel mit Geschichte
Für die Möblierung der Halle wurden Tische und Sitzgelegenheiten aus dem Holz eines Mammutbaums gefertigt, der zuvor auf dem Areal stand. Diese Möbel schaffen eine starke Verbindung zur Geschichte des Ortes und bieten gleichzeitig Komfort und Einzigartigkeit.

Ein Park für die Gemeinschaft
Mit der Parkinsel entsteht ein lebendiges Zentrum, das Menschen aller Altersgruppen zusammenführt. Die Verbindung von restaurierter Bausubstanz, durchdachter Möblierung und moderner Nutzung macht den Geistlich Park zu einem herausragenden Beispiel für nachhaltige Stadtentwicklung.

Planung
Bauherrschaft: Geistlich Immobilia AG
Landschaftsarchitektur: Studio Vulkan Landschaftsarchitektur GmbH
Planung Gebäude Bestand und Wiederaufbau Landihalle, Objektentwicklung und Möblierung: Winfried Schneider Produktdesign
Baumanagement: Arcanus AG

Unternehmen Ausführung
Holzbau Landihalle: Lehmann Holzbau
Metallbau Fassade Buvette: Wehrli Metallbau
Spielgeräte Trafoturm: Hinnen Spielplatzgeräte
Brüstungselemente Trafoturm: Jakob AG Seil- und Hebetechnik
Statik: Schnetzer Puschkas Ingenieure

066_Geistlich_Areal_Parkinsel_01
066_Geistlich_Areal_Parkinsel_05
066_Geistlich_Areal_Parkinsel_04
066_Geistlich_Areal_Parkinsel_02
066_GAS_Schlieren_FOT_04
066_Geistlich_Areal_Parkinsel_06
066_Parkinsel_Lymhof_Infoveranst_Winfried
066_Geistlich_Areal_Parkinsel_03
066_Parkinsel_Lymhof_Infoveranst_Winfried-Schneider_01
066_Parkinsel_Lymhof_Infoveranst_Winfried-Schneider_09
066_Parkinsel_Lymhof_Infoveranst_Winfried-Schneider_13
066_Parkinsel_Lymhof_Infoveranst_Winfried-Schneider_06
066_Parkinsel_Lymhof_Infoveranst_Winfried
066_Parkinsel_Lymhof_Infoveranst_FOT _10
066_Geistlich_Areal_Parkinsel_08
066_Parkinsel_Lymhof_Infoveranst_FOT _08
066_Geistlich_Areal_Parkinsel_Möbel_01
066_Geistlich_Areal_Parkinsel_Möbel_02
066_Geistlich_Areal_Parkinsel_Möbel_03

 

 

 

Pläne

066_Parkinsel_SIT_1000

 

 
 
Prozess
066_GAS_Parkinsel_MOD_FOT_07